
殘疾人升降機( 無障礙升降平台) 介紹:
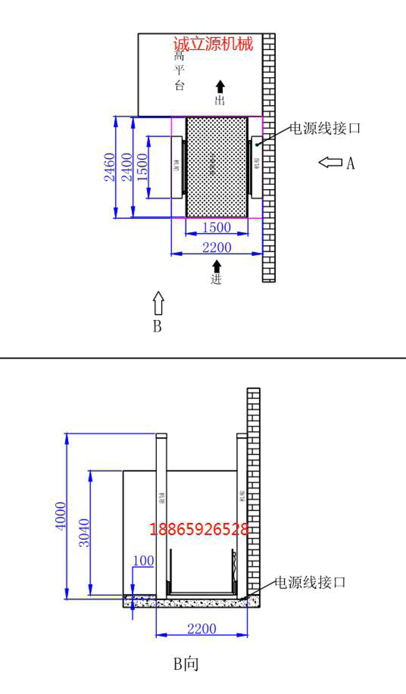
無障礙升降平台由升降平台、導軌和驅動係統等三大部分組成;導軌是由 C型鋼,H 鋼型材、T 型軌、鋁型材為主體部件,采用“翹板自複位開關操作運行”,無基坑(可選有基坑)式安裝,直接固定於混凝土地麵(無底坑室外應用情況下,平台下方混凝土地麵不得低於周圍地麵),手動液壓閥打開時升降底板可手動下降;液壓驅動,升降平穩安全,外部采用拉絲不鏽鋼材料或
鋁板靜電噴塑機箱/麵板,外形小巧美觀,不阻礙周邊環境。本設備施工簡便,產品放置戶外不易積水,不易生鏽,維護簡便。升降高度支持定製!
驅動係統: 液壓升降、螺杆升降、減速機升降等可選。
運行方式: 點動控製/聯動。
安裝方式: 無基坑安裝,直接固定於混凝土地麵,可選有基坑安裝。
外控裝置: 外呼盒分別安置於設備上、下停層附近牆麵,也可選加遙控器。
緊急停止: 遇有緊急情況按下緊急按紐開關可關閉機器運行。
手動操作: 手動液壓閥打開,是設備自帶的應急下降裝置。
殘疾人升降機安全裝置:
安全聯鎖:任何非正常操作時,升降平台不能運行。
安全觸板:運行中安全觸板遇障礙物,運行立即停止。
緊急下降:無電或故障時,手動下降裝置。
手動安全門:平台離站,安全門手動鎖定,到站手動打開。
安全鎖匙:專用鑰匙控製,專人專管。
一 、無障礙升降平台技術參數及功能
電源 220V/50HZ/25A
升降底板尺寸 1370mm(長度)×862mm(寬度)(可根據要求定製)
升降底板最小高度 65mm (離地麵)(可根據要求定製)
最大提升高度 500mm-8000mm(離地麵)(可根據要求定製)
升降速度 4-6m/min (可調)
最大載重量 300kg(可根據要求定製)
進出方式 90°或 180°(可根據要求定製)
護板形式 90°或 180°(可根據要求定製)
平台底板麵板 花紋防滑鐵/鋁板(可根據要求定製)
安全翹板工作角度 75°(上升翹起)
自重 ( ) kg
控製電源電壓 24V/DC
電機 0.75kw 220V/AC 或 110V/AC
升降控製 翹板自複位開關操作運行
過載保護 過電流繼電器控製
工作環境 室內外適用
工作溫度 -20°C—60°C
二、用戶可選配置:
無障礙升降機是為殘疾人專門設計製造的升降機。
為方便殘疾人出行及觀光,在社區,醫院 賓館等地方。旅遊觀光梯通道的自動扶梯旁,安裝了無障礙升降機。
樣式有:剪叉式無障礙升降機、鋁合金無障礙升降機、導軌式無障礙升降機、爬樓式升降機。
本公司是一家以主營無障礙升降平台,家用升降機,升降平台,登(deng)車(che)橋(qiao)。是(shi)專(zhuan)業(ye)生(sheng)產(chan)係(xi)列(lie)液(ye)壓(ya)升(sheng)降(jiang)台(tai)的(de)企(qi)業(ye),本(ben)廠(chang)生(sheng)產(chan)設(she)備(bei)精(jing)良(liang),檢(jian)測(ce)手(shou)段(duan)齊(qi)全(quan),技(ji)術(shu)力(li)量(liang)雄(xiong)厚(hou),各(ge)項(xiang)性(xing)能(neng)和(he)技(ji)術(shu)指(zhi)標(biao)均(jun)達(da)到(dao)行(xing)業(ye)標(biao)準(zhun),隨(sui)著(zhe)改(gai)革(ge)開(kai)放(fang)的(de)步(bu)伐(fa),公司得到了快速發展,現已成為國內主要的液壓升降台企業。 製(zhi)造(zao)經(jing)驗(yan)豐(feng)富(fu),公(gong)司(si)堅(jian)信(xin),隻(zhi)有(you)不(bu)斷(duan)的(de)創(chuang)新(xin),才(cai)能(neng)持(chi)續(xu)的(de)發(fa)展(zhan)。創(chuang)立(li)至(zhi)今(jin),始(shi)終(zhong)以(yi)液(ye)壓(ya)升(sheng)降(jiang)台(tai)為(wei)主(zhu)達(da)產(chan)品(pin),經(jing)過(guo)長(chang)期(qi)的(de)研(yan)究(jiu)和(he)探(tan)索(suo),無(wu)障(zhang)礙(ai)升(sheng)降(jiang)設(she)備(bei)技(ji)術(shu)成(cheng)熟(shu),操(cao)作(zuo)方(fang)便(bian),使(shi)用(yong)簡(jian)單(dan),質(zhi)量(liang)可(ke)靠(kao)。

請長按保存二維碼後點擊確定按鈕,進入微信掃一掃界麵,點擊右上角‘相冊’選擇我們的二維碼,再點擊右上角‘完成’識別添加。
(為防止瀏覽器錯誤識別,請勿直接在瀏覽器中識別二維碼)